Imóveis à venda em Sorocaba, SP: encontre na Loft
Por que comprar Imóveis à venda em Sorocaba, SP na Loft?
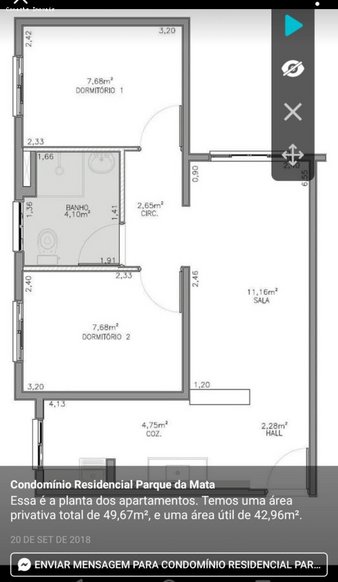
Nós te ajudamos durante toda a negociação para você realizar uma compra segura e descomplicada. Seja em um bairro mais residencial ou perto do trabalho e do metrô, aqui você vai encontrar a oferta ideal de Imóveis à venda em Sorocaba, SP para conquistar seu sonho. Agende uma visita presencial ou por videochamada, é grátis, sem compromisso e você ainda conta com mais de 46 mil corretores e imobiliárias te ajudando na compra, venda ou troca de imóveis.
Como escolher um imóvel?
Use barra de busca no topo para pesquisar por ruas, bairros e até condomínios favoritos. Você também pode usar os filtros como quantidade de quartos, suítes, com ou sem vaga de garagem para combinar perfeitamente com o preço, metragem e comodidades, como piscina, academia, salão de festas ou área verde e encontrar Imóveis à venda em Sorocaba, SP ideal para você na Loft.
Qual o preço de Imóveis à venda em Sorocaba, SP?
Aqui na Loft temos a oferta ideal para você, com Imóveis à venda em Sorocaba, SP que custam a partir de R$ 0 e com nossas opções de financiamento imobiliário as parcelas podem se adequar ao seu orçamento. Se ainda tem alguma dúvida dos custos envolvidos no processo de compra, veja em nosso portal quanto custa comprar um apartamento e conte com a gente para comprar o imóvel dos seus sonhos com segurança e conforto. Loft, com você até as chaves.

































