Voltar

Ver outros

Casa à venda em Diário Ville com 320 m², 3 quartos, 3 suítes, 2 vagas

Diário VilleRio Claro-SP

1 andar
-

320 m²
R$ 3.906 /m²

3 quartos
3 suítes

3 Banheiros

Rostos dos especialistas da Loft

Quer mais informações?

Fale com um de nossos especialistas.

ou consulte as

Dúvidas Frequentes

Mais sobre o Imóvel na Avenida 6 DV

Imobiliária parceira

L4S

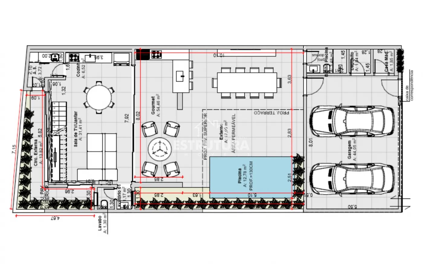
Código do Imóvel: CM1784496-4, atráves da plataforma Leads4Sales. Sobrado moderno com área gourmet e piscina, entrega prevista para maio/2026. Belíssimo sobrado em fase de construção, com projeto contemporâneo e ambientes amplos e bem distribuídos. No piso térreo, o imóvel oferece garagem para 2 veículos, espaçosa área gourmet, piscina com banheiro exclusivo, além de sala de TV e sala de jantar integradas, cozinha, lavabo, área de serviço e área de luz ao fundo, proporcionando excelente iluminação e ventilação natural. No piso superior, conta com suíte master com closet e terraço privativo, além de 2 suítes no estilo americano, ambas com closets independentes, garantindo conforto e funcionalidade. Fotos ilustrativas do projeto - não acompanha móveis. Previsão de entrega da obra: maio de 2026. Imóvel ideal para quem busca conforto, modernidade e lazer em um só lugar.

Localização: Diário Ville

Simulador de financiamento

Entenda o valor das parcelas para esse imóvel

Encontre mais imóveis em Diário Ville

Algumas sugestões para te ajudar a encontrar o imóvel dos sonhos


Continue suas buscas em Diário Ville

Ainda não encontrou o que procurava? Confira esses outros imóveis à venda

Principais bairros em Rio Claro, SP

    Principais bairros em Rio Claro, SP