Menos de
R$ 300.000

1 andar
-
2 quartos
sem suíte
1 Banheiro

Quer mais informações?
Fale com um de nossos especialistas.
ou consulte as
Dúvidas Frequentes
Imobiliária parceira
MFG NEGÓCIOS IMOBILIÁRIOS LTDA
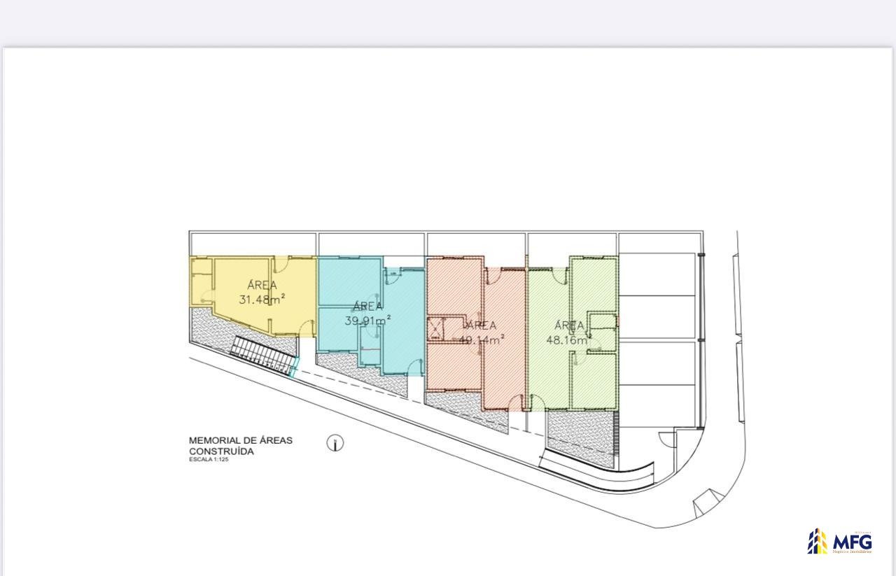
Apresentamos uma excelente oportunidade de adquirir casas térreas novas e exclusivas, localizadas no tradicional bairro da Vila Jardini, em Sorocaba. Os imóveis estão em fase final de construção, com previsão de entrega para o início de Fevereiro. Ideal para quem busca praticidade, segurança e fino acabamento em um condomínio enxuto. Destaques do Imóvel: - Tipo: Casas Térreas Individuais (Cada casa possui sua própria parede, não são geminadas) - Situação: Em fase de finalização, previsão de entrega para início de Fevereiro - Área construída: Entre 40,54 m² e 48,16 m² (Variação conforme a unidade) - 2 dormitórios (disponibilidade de unidades com 2 dorms) - Sala e Cozinha Integrada - WC (Banheiro social e/ou lavabo) Alguns dos diferenciais das casas: - Localização. - Caixa d'água 1000L. - Parede da casa separada uma da outra. - Telhado separado. - Estrutura para Ar condicionado. - Garagem coberta. - Quartinho para guardar objetos, como bicicleta, escada etc. - Sondagem de solo. - Projeto aprovado na prefeitura. - Portão automático da garagem. - Mangueira de gás já instalada e embutida. - Base para gabinete pia da cozinha. - Esquadrias de alumínio e portas de madeira. Unidade Especial: - Última unidade disponível (1 dormitório): Possui um sótão na parte inferior. Acabamentos, Conforto e Privacidade: - Fino Acabamento: Casa toda em porcelanato (modernidade e fácil manutenção) - 2 vagas de garagem cobertas - Portão automático (segurança e comodidade) - Quintais separados individualmente atrás - Imóvel novo, pronto para morar Infraestrutura e Localização: Localizado na Vila Jardini, Sorocaba. O empreendimento é um conjunto de apenas 4 unidades disponíveis, garantindo mais privacidade e tranquilidade. A Vila Jardini oferece excelente infraestrutura, com fácil acesso ao comércio e serviços. Uma ótima opção para quem busca um imóvel novo, com excelente acabamento, segurança, garagem coberta e a exclusividade de poucas unidades na Vila Jardini. As informações, disponibilidade e condições estão sujeitas a alterações sem aviso prévio. A empresa reserva-se o direito de atualização a qualquer momento
Entenda o valor das parcelas para esse imóvel
Encontre mais imóveis em Vila Jardini
Algumas sugestões para te ajudar a encontrar o imóvel dos sonhos
Ainda não encontrou o que procurava? Confira esses outros imóveis à venda
Principais bairros em Sorocaba, SP
Principais bairros em Sorocaba, SP